这间位于Albany Village中心的约 44 平方米办公空间现可供出租。该办公空间位置便利,毗邻Albany图书馆、Kell Park,靠近 Westfield购物中心、北港体育场(North Harbour Stadium)和梅西大学,可轻松从高速公路交汇处抵达。利用这个绝佳机会,与各种现有租户建立互补业务,包括社区服务、美容店、餐厅、课后班、职业培训等。
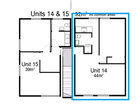
• 建筑面积:44 平方米(约)
• 位于安静的 2 层区域,与隔壁共用楼梯
• 隔开休息室和阁楼房间
• 适用于各种业务,包括专业办公室和诊所等
• 包括厕所,卫浴和厨房空间
• 有空调
• 目前年租金 $12,000 加 GST,运营成本(OPEX)约为 $3,500加GST
• 2024 年 7月起可用
不要错过这个绝佳机会,与各种现有租户一起建立您的互补业务。立即联系我们安排参观!





请联络华社服基金会
社区住房和开发团队
021760818 09-5701188(Brian)
Housing@cnsst.org.nz